• HomeIndustrial, Retail, Residential, Commercial, Feasibility, Interior Design
  • Commercial
  • Retail
  • Industrial
  • Interior
  • Master Planning
  • Residential
  • Childcare
  • International
  • Sustainability
  • PracticeIndustrial architecture, Retail architecture, Residential architecture, Commercial architecture, Feasibility, Interior Design
  • Careers
  • ContactIndustrial architecture, Retail architecture, Residential architecture, Commercial architecture, Feasibility, Interior Design
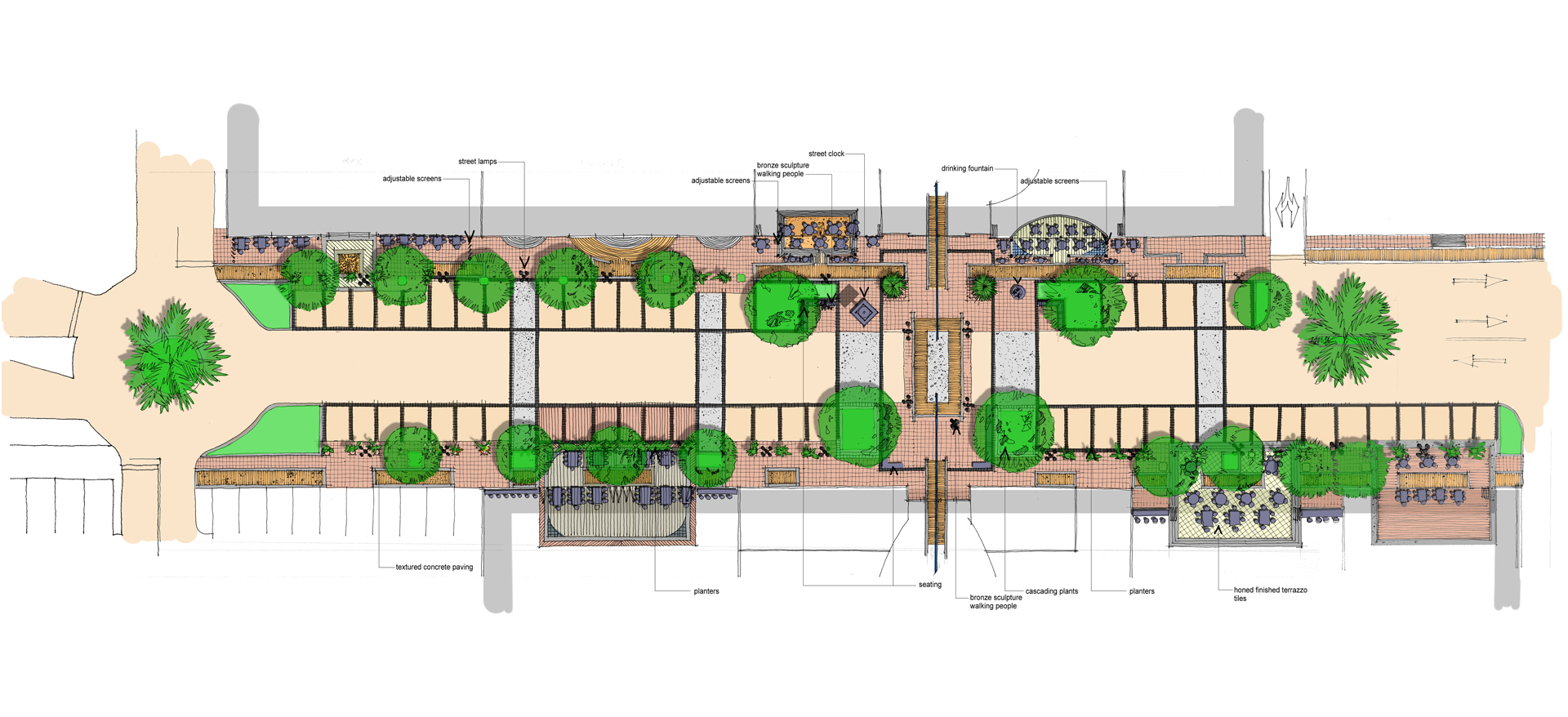
Westfield Riccarton Shopping Centre, Christchurch
Westfield Riccarton Shopping Centre, Christchurch
Westfield Riccarton Shopping Centre, Christchurch
Westfield Riccarton Shopping Centre, Christchurch
 

Westfield Riccarton Shopping Centre, Christchurch

  • Client:
    Westfield
  • Location:
    Christchurch, New Zealand

This major extension project was commissioned by Westfield to reinforce the appeal of its premier Christchurch mall. The brief outlined two main objectives. The first was to design a new wing to house an entertainment and lifestyle precinct, incorporating cinemas, restaurants, cafés and retail outlets. The second was to enhance the overall shopping experience by designing indoor and outdoor shops – a mall with the added benefit of strip shopping.

Copyright 2026 Woodhams Meikle Zhan New Zealand Limited

Designed by Sauvage Design. Website Development by NetPotential |
Login